• PORTFOLIO
  • SERVICES
  • SHOP
  • BLOG
  • ABOUT
  • CONTACT
  • DESIGNED for Designers
  • PRIVACY POLICY
  • Menu

DESIGNED

Inspired, personalized, creative interior design by Carla Aston
  • PORTFOLIO
  • SERVICES
  • SHOP
  • BLOG
  • ABOUT
  • CONTACT
  • DESIGNED for Designers
  • PRIVACY POLICY

Living Room Consulation - Designed in a Click!

March 21, 2026 in Decorating, Design Plans, Furniture, Shopping, Q&A, Reader Advice

I’m sharing one of my Designed in a Click consultations for a living room that needed a furniture layout, some furniture and drapery suggestions. Take a look at this living room, open concept plan, below. There might be a few tips to help you with your living room space.

My blog contains affiliate links. Any purchases, at no additional charge to you, render me a small percentage, are most appreciated and make this blog possible. :-)


Here were her questions:

  1. What is the best furniture layout to maximize seating in this space without sacrificing flow and comfort? (We are a family of 4 with a teen and toddler, but when we have guests someone is always on the floor, stairway,etc.)

  2. What is your recommendation for hanging drapery considering the windows’ placement on the wall about three feet from the door and about five feet from the bookshelves?  

  3. What furniture recommendations do you have, even generally? (They are tall and are stumped about scaling furniture appropriately in the room. She prefers an upholstered ottoman for a coffee table, but is having trouble finding ones that aren’t very small or large/square.)

  4. Any other advice you have for this space? 


My Design Recommendations

Furniture Layout & Selections:

I like having the sofa back to the windows and having the opposite side of the seating group more open to the stairs. I think it looks more welcoming and makes it easy to add extra seats in the open area if you have people over for game watching, etc.

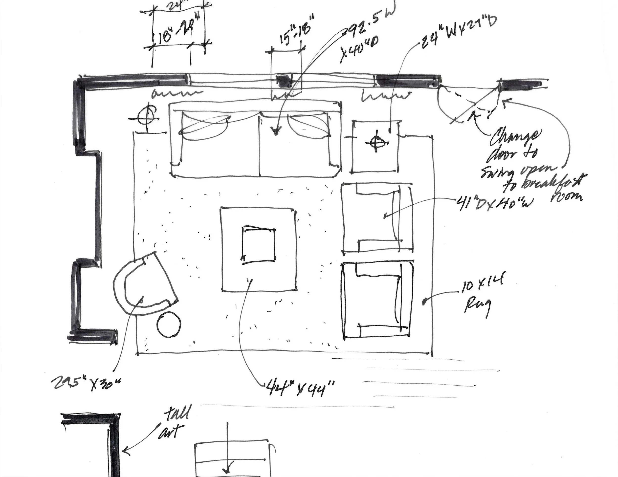
I started with a floor plan with the room dimensions she sent me.

I would do a longer, more bulky sofa, to anchor the seating group and feel more comfy. This one, from Crate and Barrel, is 92" but anything from 90" to 96" would work.

I put it in a dark blue color fabric on the storyboard, but this could be done in any other favorite color palette.  The fabric shown is Navy Hansel Chenille, it is indicated as a performance fabric. I would find a store close to you and sit in it if you can to determine if it is comfortable for you and your husband and check out their fabrics in person.

If you are looking for an especially deep sofa, try a local furniture store that has Vanguard Furniture. They allow all kinds of customization with style and seat depth.

Regarding the two chairs, I like those facing the tv/fireplace wall. I found some boxy, weighty lounge chairs, as I would want them to be comfortable for tv viewing.

You can use the two leather ones you have, but I really like these in a lighter, warm colored fabric, rather than a dark brown. You could just wait on these and get them on down the road, using your dark brown ones with an eye out to find something lighter colored on down the road. 

Now, you have room for a larger ottoman/coffee table, like this one that has a hard surface in the middle and soft all around. It has the advantages of both a coffee table and ottoman. This one is 44" square from Vanguard. This brand is available at many furniture stores. 

I like the ottoman being leather if you go with fabric on the lounge chairs, or it could be a tough, woven fabric of some kind.

You can also do a smaller chair over by the fireplace, to pull around when you need more seating, or just as an accent chair. I like this one from Crate and Barrel, but you can make this whatever style you like. This can be where you can be trendy and fun.

I put this chair in their Cinnamon Nazarre Chenille fabric. Not sure of the colors in person, you would need to get samples and compare with the other fabrics in the room.

I’m showing a 10 x 14 rug, in a lighter steel gray-blue color with some organic pattern, to soften the space. 

I like this floor lamp over in the corner to brighten things up over there. I love the wood stem on this lamp and the smaller shade.

This table is nice for an end table. I like the lighter finish because the terracotta lamp I have proposed on top of it, will show up nicely.

I like this little medium wood tone drum table, for over by the funky chair. It could even be used for a stool in a pinch.  

Some pillows, of course, to repeat the contrasting color in the room.

And here it is all put together.

The other option to the sofa / chair grouping is to do a sectional in this L shape, if you prefer. Then you could put one of your leather chairs down there in the corner by the fp.






Draperies:

I like a linen or linen-look type fabric here and I'd mount them about 3/4 of the way up to the ceiling in that space above the window. A little higher than half way but not at the ceiling. Going all the way to the ceiling is not always the best idea.

You can see in my sketch, I've also noted what the finished width of the panels should be. I tend to go with a more substantial width for side panels, as I don’t like a skinny look. They should look as full as possible.

I often do a middle panel, not quite as wide as the ends, to give the illusion of a very wide window. It feels richer and puts more color on the wall, which I like here.

Here’s an example on one of my projects of that center panel. I think it can create a more finished look, especially when you are mounting draperies higher and there is a good sized gap up top too.

Check out Two Pages or The Shade Store or definitely a local drapery workroom can help you get exactly what you want and get it installed properly.


Extra Notes on this Living Room


I would look to add some art on the big wall by the stair. Either a large, vertical piece or maybe (3) horizontal pieces stacked in a series, etc.

I would also consider changing out the back door to swing open into the breakfast room. I think there is more open space on the breakfast room side once you fill in with furniture and seems like it would work better overall.

Designed in a Click Service

I’ve been busy with in-person projects the last two years and have been doing less of these consultations. They are fun to dip my toe back into now and then.

I am not taking more full service projects until summer at this point, so this is a way to get a few of your questions answered if you need some help on a project you are putting together yourself.

Did you like this article?

Tags: living room furniture, living room layout, Designed in a Click, consultation
Prev / Next

Carla Aston - interior designer


No results found

archive

TRENDING

Summary Block
This block has no content yet. Items you add to the page connected to this block will display here.
Featured
My handy guide for planning your wall decor!My handy guide for planning your walls!

My handy guide for planning your wall decor!

My handy guide for planning your walls!


Want to sponsor a post or maybe this blog? Check out how you can be featured HERE.


See This Link For Advertising Privacy Policy, Comment Policy, and Disclaimer


Mean spirited, derogatory comments will be deleted.