• PORTFOLIO
  • SERVICES
  • SHOP
  • BLOG
  • ABOUT
  • CONTACT
  • DESIGNED for Designers
  • PRIVACY POLICY
  • Menu

DESIGNED

Inspired, personalized, creative interior design by Carla Aston
  • PORTFOLIO
  • SERVICES
  • SHOP
  • BLOG
  • ABOUT
  • CONTACT
  • DESIGNED for Designers
  • PRIVACY POLICY

Hand Sketching in the Interior Design Process

April 18, 2026 in Design Plans, Designing, Remodeling

I’m very attached to the way I work through a design project. While I find materials, details, furnishings and fixtures interesting and inspirational, they are rarely ever the starting place for a design project. They are mostly selected after the schematic design is worked out first, keeping in mind all the parameters and goals set by the client.

The order in which I work on a project is broken down into 5 phases that can overlap but generally are done in this order. I do mostly remodeling design, so this process works well for those types of projects.

  1. Programming

  2. Schematic Design

  3. Design Development

  4. Documentation

  5. Construction Administration / Procurement

After the Programming phase, where I gather the information to start the design, assess goals and desires, measure and photograph the space, I move on to Schematic Design.

Hand Sketching is Part of the Process

I always start with a floor plan and work my way through elevations, reflected ceiling plans and then sometimes will do perspectives to show the client the Schematic Design. I do these in hand sketch form.

I don’t do fancy renderings at this point, as I want to get some feedback from the client before I invest more time and energy into the design direction.

I will present these hand sketches along with a storyboard and key materials in this phase.

Storyboards will show images of products paired together in a way that gets the overall design across. Materials like a stone slab material, tile, wood color tone, metal finish, a few fabrics or a rug selection, perhaps a key paint color will be presented to give the client something tangible and to see materials in person.


Sketches Presented to Clients

I’m sharing some of my project sketches here today to highlight this part of the project.

I don’t ever want anyone thinking they will start a project with me and get a full blown finished rendering at our first presentation. My sketches are a rough representation of what it will look like, if we move ahead with that design.

Everything gets tightened up after this first look, with CAD and fine-tuning.

No, I don’t use AI to create the design. I’m not against AI. I just prefer to work this way and I’m not up to spending my time learning enough about AI to be effective with it.

I also happen to love this creative phase of the project, it is my favorite part (next to watching it being built out). So, I don’t want to shortcut or cheat through this portion of the work.

Hand sketching is how I think everything out, it is an integral part of the process for me.

 

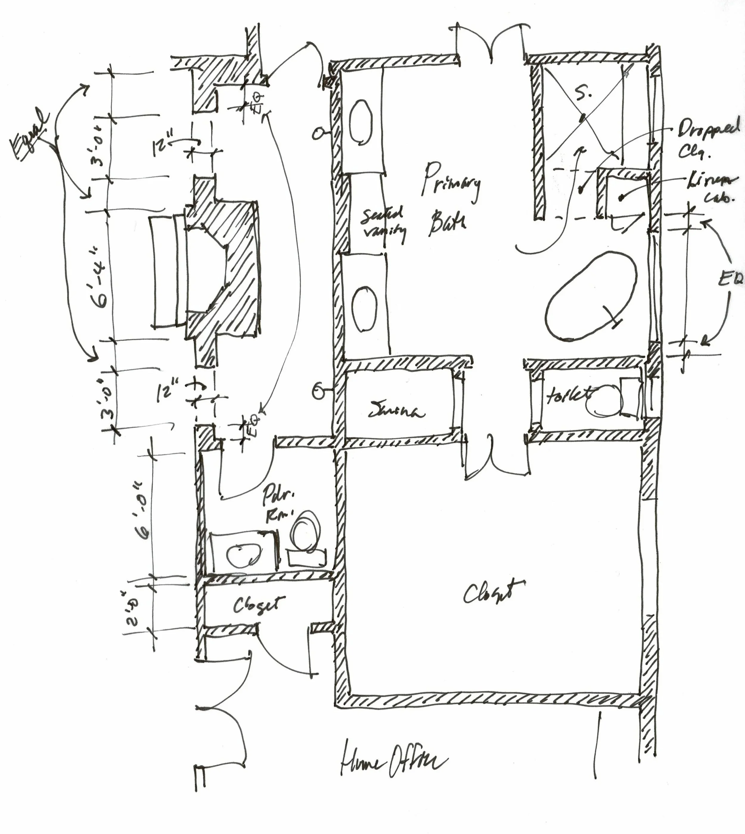
Floor Plan Sketches

It all starts with a floor plan, whether it is a simple furniture layout or a complicated rework of interior spaces. I tend to take it room by room, unless I’m affecting a neighboring area, borrowing space from one room for another.

Of course, everything is eventually hardlined, but a sketch like these might be in a first blush look that I show the client.

A simple furniture layout, scaling the furniture in the room.

This hallway, powder room, closet space behind the fireplace was reworked for a better flow.

Elevation sketches

Once the floor plan is figured out, the walls are next. Where are the focal points? Where are the windows and door openings and how do they impact the wall elevations? Where do certain items need to be, like tvs, bookcases, appliances, vanities, beds, etc. I place those and work them in to the overall design.

I label these up typically, as not only will my clients see them but they will go to my drafter for the CAD set. All my drafter needs to do is hardline what I’ve done. I do all the design, detailing and notes.

(Thank goodness she now can read my handwriting!)

Detail Sketches

This is how I work out how it all fits together, how it might be built out. This is where a designer shines, to make transitions meaningful and smooth.

How wide does that banding need to be? How much should one cabinet box come out in front of the adjacent cabinet box. How should the finishes die into each other?

 

I didn’t leave the placement and size of these slots in a laundry room cabinet up to the carpenter on the job.

Every curve and notch is intentionally measured out in the design.

Perspective Room Sketches

I don’t always do an overall perspective sketch. Especially with bathrooms, elevations can work just fine. I do them when I’m inspired or need to on any project to help sell the concept or get the points across I’m trying to show.

 

I use hand sketches many times in my Designed in a Click™ consultations. I often will do storyboards as well if I am sharing some furnishings too. Here are examples of those consultations, below.

Featured
This Coastal Home Foyer Will Have you Ready for the Beach!
Jan 24, 2024
This Coastal Home Foyer Will Have you Ready for the Beach!
Jan 24, 2024

Today’s interior design Q&A has to do with furnishing a foyer in a coastal home. This homeowner has moved in for full time living and wants help tying it all together with a more finished look.

Yay! This will be fun.

Jan 24, 2024
A Large Primary Bedroom Creates a Roomy Challenge
Nov 29, 2023
A Large Primary Bedroom Creates a Roomy Challenge
Nov 29, 2023

You can see that wide open space is not a problem in this bedroom. However, it feels a little lackluster and empty. See all my recommendations with some sketches and a storyboard to help this homeowner achieve a bedroom that feels more “designed”.

Nov 29, 2023
Opening Up a Wall Between Living Room and Family Room
May 20, 2023
Opening Up a Wall Between Living Room and Family Room
May 20, 2023

Here’s a consultation that concerned opening up a wall between living room and family room. There were some concerns and challenges, so come and take a look!

May 20, 2023

Did you like this article?

Tags: sketching, sketches, hand sketch, schematic design
Prev / Next

Carla Aston - interior designer


No results found

archive

TRENDING

My handy guide for planning your wall decor!My handy guide for planning your walls!

My handy guide for planning your wall decor!

My handy guide for planning your walls!


Want to sponsor a post or maybe this blog? Check out how you can be featured HERE.


See This Link For Advertising Privacy Policy, Comment Policy, and Disclaimer


Mean spirited, derogatory comments will be deleted.